Ir al contenido

PAMMA HOME - Mi Casa

PAMMA HOME
Mi Casa

Ofrecemos, desde la honestidad y la transparencia, un servicio integral y personalizado de cara al diseño y construcción de tu hogar.

“Porque no hay dos personas iguales. Creemos en la personalización de los hogares creando lugares únicos donde habitar.”

Te ofrecemos

1. Asesoramiento

Cuéntanos tu historia.

Analizaremos la viabilidad de tus ideas y estudiamos las posibilidades de tu vivienda.

2. Proyecto

Fase I: Plantearemos diferentes propuestas de diseño con el fin de encontrar la que más encaje con tus gustos y necesidades.

Fase II: Desarrollaremos la propuesta definitiva mediante un proyecto arquitectónico, con especial detalle en la definición técnica, los acabados y las calidades.

3. Obra

“Porque nos gusta que las obras acaben bien”

Construcción: Te ofrecemos ejecutar la obra con constructoras especializadas de nuestra confianza, en búsqueda de una mayor coordinación, control de costes y reducción de tiempos.

Dirección de Obra: Supervisaremos la correcta ejecución de la obra realizando un seguimiento semanal y exhaustivo de la misma, con independencia del contratista que elijas.

4. Gestión y tramitación

Nos encargamos de toda la burocracia y de cualquier trámite administrativo que resulte necesario.

Solicitud de licencia.
Declaración Responsable.
Autoliquidación de tasas e impuestos.
Instalación de contenedores y/o sacos RCD.
Certificado de Eficiencia Energética.
Subvenciones.

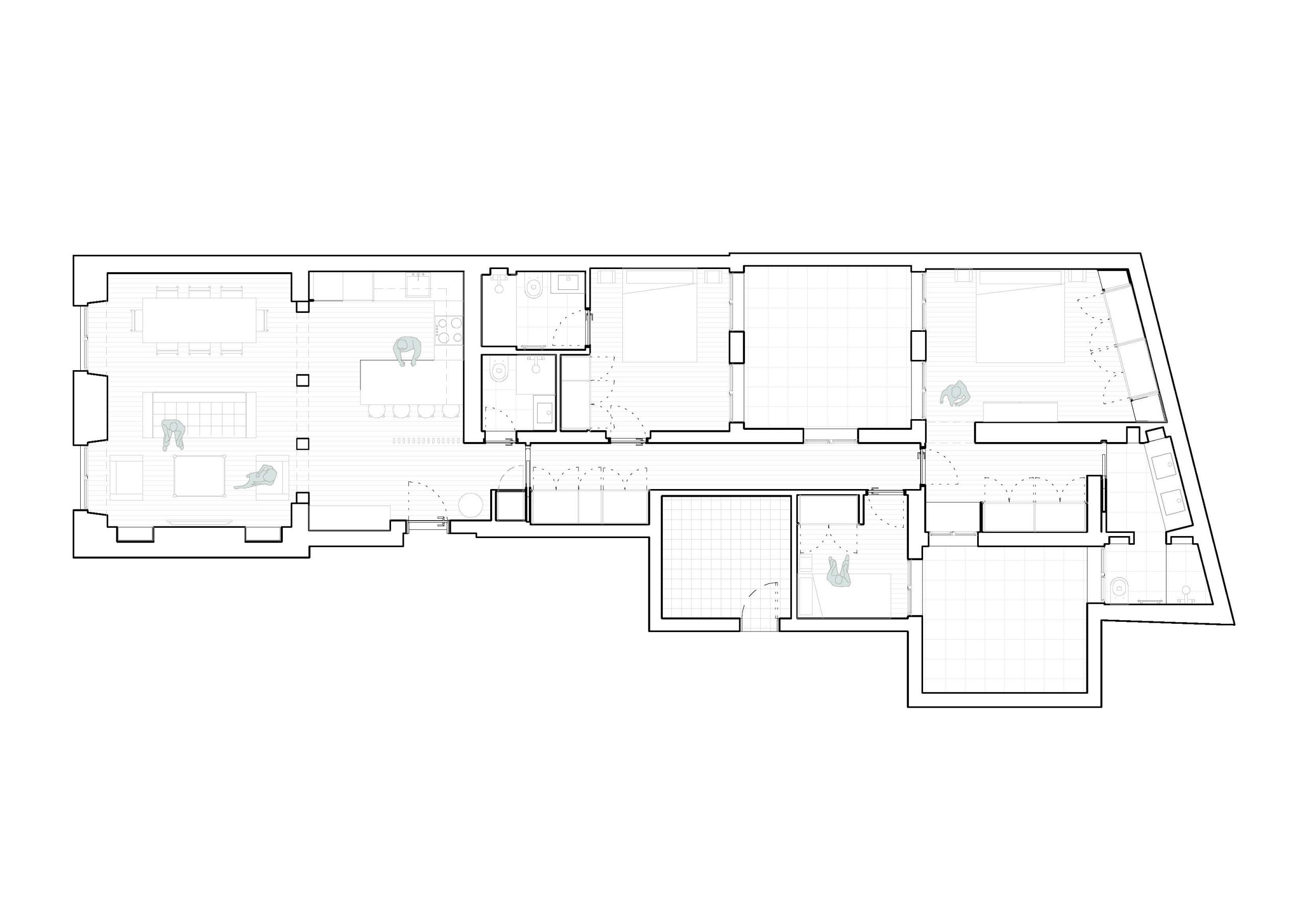
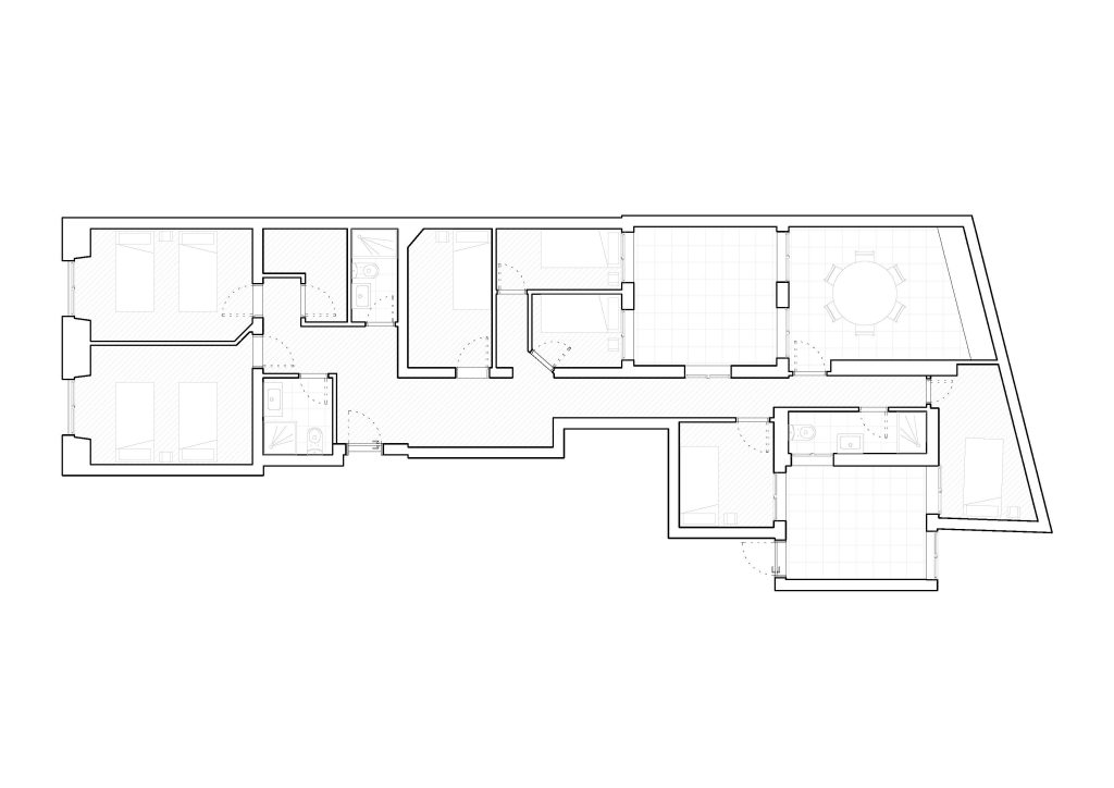
Antes

Después

Antes

Despúes

Da el siguiente paso

Qué

«¿Tienes una idea?, cuéntanosla»

Cómo

“Juntos le daremos forma”

Cuánto

“Elaboraremos un presupuesto
a la medida de tus necesidades”

Cuéntanos tu historia

PAMMA
Resumen de privacidad

Esta web utiliza cookies para que podamos ofrecerte la mejor experiencia de usuario posible. La información de las cookies se almacena en tu navegador y realiza funciones tales como reconocerte cuando vuelves a nuestra web o ayudar a nuestro equipo a comprender qué secciones de la web encuentras más interesantes y útiles.