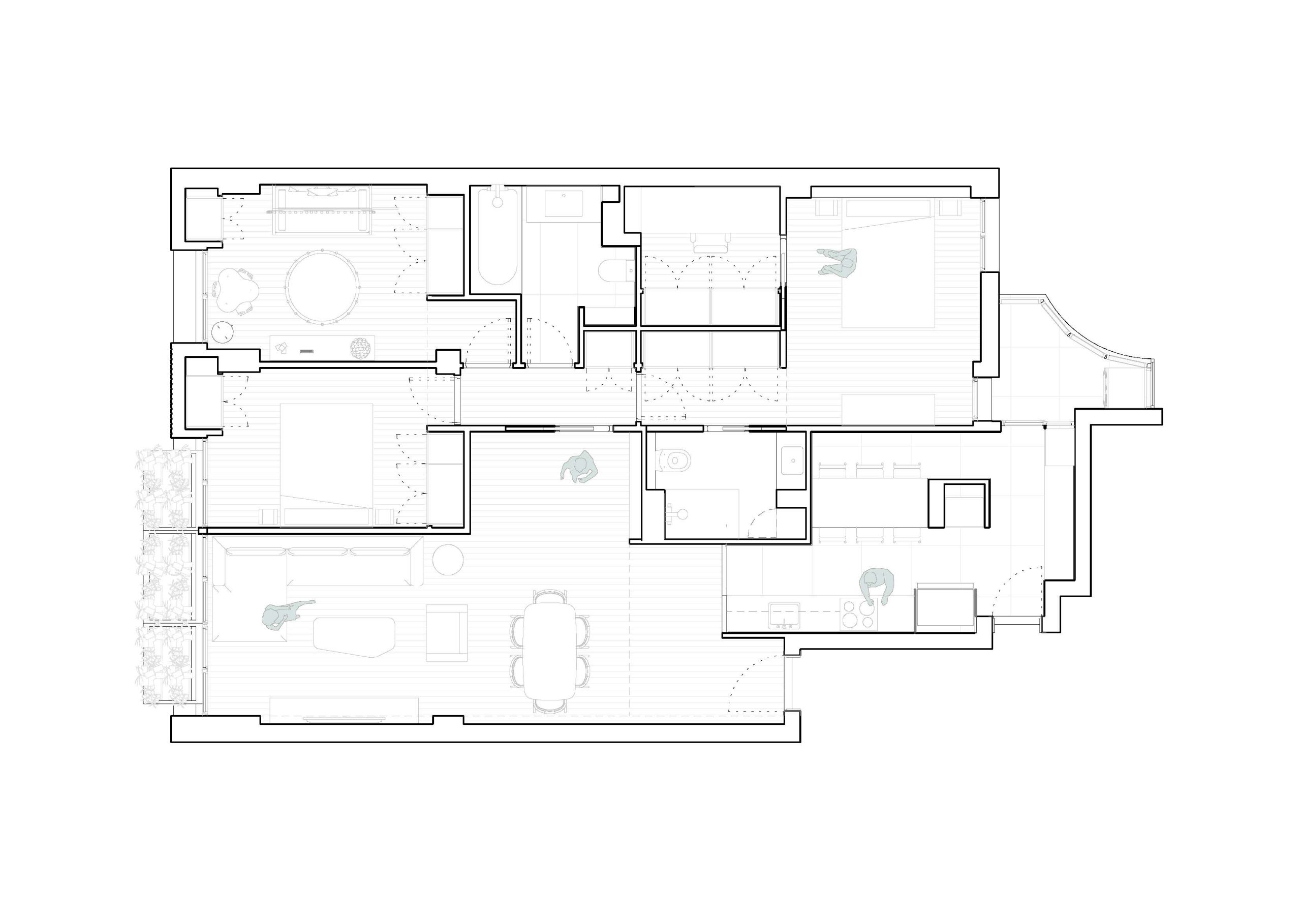
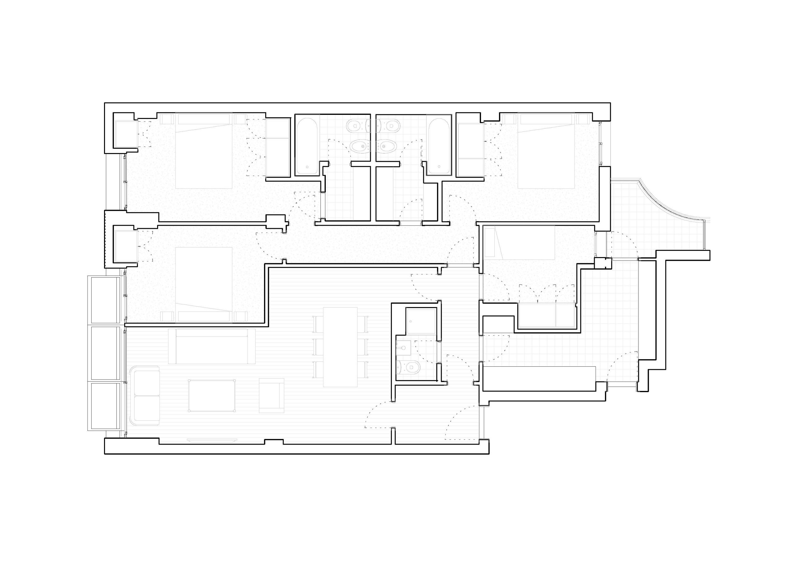
Tipo:
Obra:
Emplazamiento:
Distrito:
Barrio:
Ordenanza:
Edificio:
Uso Existente:
Uso Implantado:
Planta:
Superficie:
Calidades:
Rehabilitación Integral de vivienda
Redistribución de espacios
Renovación de las instalaciones
Madrid
Chamberí
Rios Rosas
Norma Zonal 1 Grado 3º
1979
Residencial Vivienda
Sin Modificar
Sexta
115 m2
Altas