Tipo:
Obra:
Emplazamiento:
Distrito:
Barrio:
Ordenanza:
Edificio:
Uso Existente:
Uso Implantado:
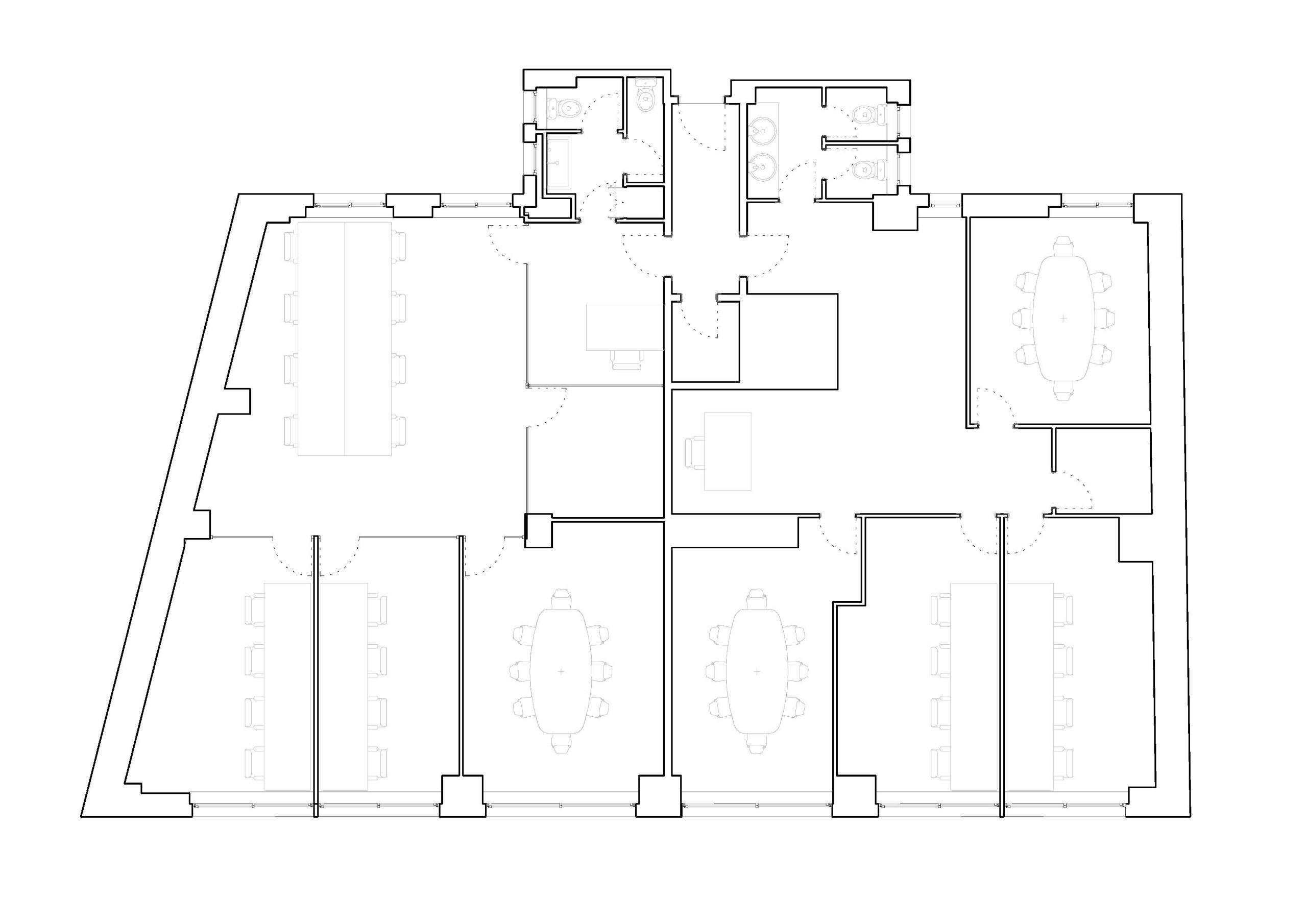
Planta:
Superficie:
Calidades:
Segregación y Cambio de Uso
Redistribución de espacios
Renovación de instalaciones
Reorganización de huecos de fachada
Madrid
Salamanca
Recoletos
Norma Zonal 1 Grado 3º
1976
Terciario – 2 Oficinas
Residencial – 2 Viviendas
Primera
240 m2
Premium